Состав теплоносителя
Эффективность работы агрегата зависит от электрических свойств жидкости. Электропроводность обеспечивается не самой водой, а от содержащимися в ней солями.
В соответствии с инструкцией производителей вода используется питьевая по ГОСТ 51232, сопротивление 1300 Ом на сантиметр кубический. На практике это зависит еще и от характеристик электросети.
Необходимые параметры тока указаны в паспорте котла. Отклонения от этих цифр компенсируются составом воды:
- при более высоком токе в питьевую воду добавляют дистиллят;
- при заниженном увеличивают количество солей. Можно использовать пищевую соду, 30 граммов на 100 литров.
Иногда производители разрешают использовать в качестве теплоносителя незамерзающие жидкости. Физико-химические характеристики у них другие, обычно приходится разводить исходный состав дистиллированной водой.
Устройство системы (характеристики насоса, труб, расширительного бака и т.д.) тоже отличается от обычного водяного контура.
Дешевое отопление дома электричеством с использованием резервного источника тепла
Работа котла на электричестве может прерваться из-за отключения электроэнергии, неполадок на линии, обрыва или замыкания проводов, поэтому использование комбинированного котла (дрова/электричество) не оставит вас без тепла в доме.
Котел для отопления на дровах и электричестве – это надежный, универсальный, функциональный агрегат, благодаря которому можно обеспечить постоянное отопление дома. Этот котел может работать как на твердом топливе (дрова, брикеты, отходы древесины), так и на электричестве одновременно. Такая многофункциональность возможна за счет хорошо продуманной уникальной конструкции оборудования.

Стоимость тенового котла в разы меньше, чем у агрегата с индуктивным или электродным нагревом
Конструкция комбинированного котла для отопления на дровах и электричестве
Отличительной чертой комбинированного котла является наличие ТЭНа. Топка для дров размещена в нижней части агрегата. При сжигании древесины тепловая энергия нагревает теплоноситель и нагретая жидкость (вода) направляется в водяную систему отопления. Такие котлы оборудованы устройствами, которые отвечают за автоматическое включение/выключение ТЭНа в зависимости от установленной температуры теплоносителя. Когда древесина сгорает и в топке спадает жар, и температура воды падает, в работу включается ТЭН, и котел, потребляя электроэнергию, поддерживает заданную температуру. Все манипуляции происходят благодаря автоматике.

Устройство комбинированного электро-дровяного котла
Мощность тепла, выделяемого при сгорании твердого топлива, составляет 25-35 кВт. Этой мощности вполне хватает для обогрева помещения в 100-120 м?, а ТЭН используется для поддержания стабильной температуры в доме. Комбинированные системы обогрева особо популярны в частном секторе, поскольку для нагрева помещения используется дешевое топливо. Благодаря встроенным ТЭНам, есть возможность варьировать режим отопления.

Типовая схема подключения: 1 — электрический котел; 2 — система управления; 3 — группа безопасности; 4 — расширительный бак; 5 — циркуляционные насосы; 6 — радиаторы; 7 — распределительная гребенка; 8 — теплообменник (для бассейна); 9 — бойлер косвенного нагрева; 10 — полотенцесушитель; 11 — теплый пол; 12 — счетчик воды; 13 — приточная вентиляционная установка
Однофазные и трехфазные электрические котлы
К выбору котла следует отнестись ответственно, поскольку нужно учитывать все нюансы, касающиеся электрообслуживания вашего дома. Электролинии не всегда способны справиться с нагрузкой, которая повышается после установки котла. Чтобы таких проблем не возникало, посетите отделение энергосбыта, к которому относитесь, и уточните (или попросите рассчитать) максимальную мощность, которую они смогут обеспечить. При расчете необходимых киловатт не забудьте про бытовые электроприборы, находящиеся у вас дома.

Схема строения одноконтурного настенного электрического котла: 1 — электрошкаф; 2 — контрольные лампы; 3 — регулятор температуры; 4 — термометр/манометр; 5 — выключатели мощности; 6 — главный выключатель; 7 — расширительный бак; 8 — кабельный ввод; 9 — предохранительный клапан; 10 — насос; 11 — обратная линия котла; 12 — штекерное соединение контура регулирования; 13 — предохранительный ограничитель температуры; 14 — предохранитель системы управления; 15 — воздушный клапан; 16 — облицовка котла с теплоизоляцией; 17 — реле давления воды ; 18 — нагревательные стержни; 19 — подающая линия котла
Электрический котел устроен довольно просто: он содержит теплообменник и блок управления и регулировки. Существуют доукомплектованные модели, которые снабжены расширительным баком, фильтром и насосом.
Для отопления частных домов применяются электрокотлы небольшой мощности: однофазные и трехфазные.

Схема каскадного подключения электрического котла
Однофазный электрический котел
Однофазным считается котел, работающий от сети 220 В. Подключить его не составит труда, поскольку все дома оснащены необходимым напряжением. Мощность устройства варьируется от 6 до 12 кВт. Целесообразно использовать такой котел для площади, не превышающей 100 м². Особенности электрического котла для отопления дома (220 В):
- работает по принципу водонагревательного прибора (бойлер, чайник);
- для работы достаточно обычной сети (220В);
- для его установки не нужно получать специальное разрешение.

Электрический котел для использования в частном доме
Трехфазный электрический котел
Трехфазный котел более мощный, чем однофазный, и подходит для установки на площади более 100 м². Чтобы сеть могла выдержать нагрузку при эксплуатации котла, их производят трехфазными, то есть подключаются они к сети на 380 В. Особенности трехфазного котла:
мощный
Нужно брать во внимание отапливаемую площадь. На 10 м² требуется 1 кВт + 10-20% (для запаса);
работает от трех фаз (380 В), необходимо увеличивать мощность подачи тока в доме;
необходимо получение специального разрешения в энергосбыте на увеличение потребляемой мощности и установку котла;
Электрический котел для отопления частного дома, цены и виды. Особенности электрических котлов для отопления частного дома. Расчет мощности и подключение электрических котлов.
номинальный ток, который должен быть в каждой из трех фаз, варьируется от 6,1 до 110 А. Этот показатель влияет на выбор автоматического выключателя, проводку, ее поперечное сечение (допустимые показатели указаны в таблице ниже). Правильный подбор необходимых элементов исключит возможность возгорания.
Таблица «Значения сечения кабеля и тока предохранительных автоматов»:
Мощность котла (до указанного значения)
Значение тока предохранительных автоматов, для однофазных котлов
Значение тока предохранительных автоматов, для трехфазных котлов
Сечение кабеля для однофазных котлов
Сечение кабеля для трехфазных котлов
Как правильно выбрать электрический котел для отопления частного дома
Когда нужна альтернатива газовому отоплению, владельцы частных домов одним из первых рассматривают вариант с установкой электрокотла. И, кстати, нередко на нём останавливаются, потому что, если правильно использовать достоинства и недостатки электрических теплогенераторов, то получится создать очень удобное и эффективное отопление.
Электрокотлы легко интегрируются в любые отопительные системы, поэтому они часто являются дополнительными или резервными устройствами, тогда как выбрать электрический котёл отопления в качестве основного источника тепла тоже можно. Приобрести оборудование необходимой мощности – не проблема, а с помощью теплоаккумуляторов и многотарифных счётчиков удаётся существенно снизить расходы на потреблённую электроэнергию.
Все электрокотлы предназначены для нагрева теплоносителя, который с помощью насосного оборудования (иногда – естественным образом) циркулирует по трубам, отдавая тепло радиаторам, либо конвекторам. Это – классическое водяное отопление с характерными для него способами разводки, со своими плюсами и минусами. Система может включать в себя контур водяного пола или бойлер косвенного нагрева для ГВС.
Одна из схем подключения электрического котла
Недостатки электрических котлов:

- Высокая стоимость каждого киловатта тепла.
- Система требовательна к качеству сетевого электроснабжения, при перебоях отопление отключается.
- Выделенных мощностей бывает недостаточно, часто требуется специальное разрешение от компании-поставщика.
- Чтобы подключить мощные агрегаты, необходимо обеспечить трёхфазное питание с напряжением 380 В.
- Требуется тщательная очистка воды.
К основным достоинствам можно отнести:
- Надёжность системы и простоту устройства электрокотлов. Даже для неподготовленного человека выбор котла отопления для дома не является проблемой.
- Низкие капитальные затраты на оборудование, недорогой и простой монтаж.
- Отопление не требует особого ухода во время эксплуатации, система легко поддаётся автоматизации.
- Безопасность электрокотлов (нет огня, нет продуктов горения, кислород помещений не расходуется).
- Оборудование компактное, не нужна отдельная топочная, не требуется вентиляция, отсутствуют ограничения по его месторасположению.
Все рабочие элементы этого настенного котла находятся внутри корпуса с современным дизайном
Особенности ТЭНового электрокотла
ТЭНовый котел содержит всю пускорегулирующую аппаратуру и не занимает много места.
Данный электрокотел для отопления дома работает по принципу электрочайника. Разогрев воды осуществляется с помощью ТЭНов. Этот нагревательный элемент имеет свою отличительную особенность: нагревание теплоносителя осуществляется при помощи проточного режима. С его же помощью обеспечивается нормальная циркуляция воды в системе отопления дома.
Многие специалисты будут советовать вам выбрать именно такой электрокотел, так как он обладает множеством преимуществ. Прежде всего выбрать такое оборудование стоит из-за его великолепного дизайна, благодаря которому агрегат можно повесить на стену и он не будет занимать много места. ТЭНовый электрокотел достаточно просто монтировать, он имеет в своем арсенале пусковую и терморегулирующую арматуру, которая дает возможность поддерживать нужную вам температуру воды в желаемом режиме.
В зависимости от конструкции, на этом оборудовании используются сразу 2 типа датчиков. Один из них позволяет поддерживать в помещении изначально заданный температурный режим, на основании того, до какой температуры нагрет системный теплоноситель. А при помощи другого датчика вы сможете сами выбрать и установить желаемую температуру воздуха в комнате.
Если вы ищете недорогое, качественное и универсальное оборудование, отдайте свой выбор в пользу ТЭНового электрокотла. Вы сможете отключать и включать определенные ТЭНы, регулируя тем самым употребляемую мощность.
Конечно же, у такой системы есть и определенные недостатки. Самый главный – появление накипи на нагревательных элементах, что приводит к постепенному уменьшению тепловой отдачи и увеличению употребления электроэнергии.
Экономичные электрокотлы для отопления частного дома
Когда наступают холода, перед владельцем частного дома встает проблема отопления помещения. В силу многих обстоятельств, иногда не удается провести газ, поэтому встает вопрос о приобретении систем электрического обогрева. Необходимо выбрать не только оптимальную систему, которая будет прогревать все пространство, но и ту, что не бьет по карману каждый раз, когда приходится снимать показания со счетчиков. В этом плане лучшим решением является электрокотел. Но встают вопросы: Какой электрический котел самый экономичный? Как его выбрать? Следует рассмотреть несколько видов электрического отопления дома.
экономичные электрокотлы для отопления частного дома
Однофазные и трехфазные электрические котлы
К выбору котла следует отнестись ответственно, поскольку нужно учитывать все нюансы, касающиеся электрообслуживания вашего дома. Электролинии не всегда способны справиться с нагрузкой, которая повышается после установки котла. Чтобы таких проблем не возникало, посетите отделение энергосбыта, к которому относитесь, и уточните (или попросите рассчитать) максимальную мощность, которую они смогут обеспечить. При расчете необходимых киловатт не забудьте про бытовые электроприборы, находящиеся у вас дома.

Схема строения одноконтурного настенного электрического котла: 1 — электрошкаф; 2 — контрольные лампы; 3 — регулятор температуры; 4 — термометр/манометр; 5 — выключатели мощности; 6 — главный выключатель; 7 — расширительный бак; 8 — кабельный ввод; 9 — предохранительный клапан; 10 — насос; 11 — обратная линия котла; 12 — штекерное соединение контура регулирования; 13 — предохранительный ограничитель температуры; 14 — предохранитель системы управления; 15 — воздушный клапан; 16 — облицовка котла с теплоизоляцией; 17 — реле давления воды; 18 — нагревательные стержни; 19 — подающая линия котла
Электрический котел устроен довольно просто: он содержит теплообменник и блок управления и регулировки. Существуют доукомплектованные модели, которые снабжены расширительным баком, фильтром и насосом.
Для отопления частных домов применяются электрокотлы небольшой мощности: однофазные и трехфазные.

Схема каскадного подключения электрического котла
Однофазный электрический котел
Однофазным считается котел, работающий от сети 220 В. Подключить его не составит труда, поскольку все дома оснащены необходимым напряжением. Мощность устройства варьируется от 6 до 12 кВт. Целесообразно использовать такой котел для площади, не превышающей 100 м?. Особенности электрического котла для отопления дома (220 В):
- работает по принципу водонагревательного прибора (бойлер, чайник);
- для работы достаточно обычной сети (220В);
- для его установки не нужно получать специальное разрешение.

Электрический котел для использования в частном доме
Трехфазный электрический котел
Трехфазный котел более мощный, чем однофазный, и подходит для установки на площади более 100 м?. Чтобы сеть могла выдержать нагрузку при эксплуатации котла, их производят трехфазными, то есть подключаются они к сети на 380 В. Особенности трехфазного котла:
мощный
Нужно брать во внимание отапливаемую площадь. На 10 м? требуется 1 кВт + 10-20% (для запаса);
работает от трех фаз (380 В), необходимо увеличивать мощность подачи тока в доме;
необходимо получение специального разрешения в энергосбыте на увеличение потребляемой мощности и установку котла;
номинальный ток, который должен быть в каждой из трех фаз, варьируется от 6,1 до 110 А. Этот показатель влияет на выбор автоматического выключателя, проводку, ее поперечное сечение (допустимые показатели указаны в таблице ниже). Правильный подбор необходимых элементов исключит возможность возгорания.
Таблица «Значения сечения кабеля и тока предохранительных автоматов»:
| Мощность котла (до указанного значения) | Значение тока предохранительных автоматов, для однофазных котлов | Значение тока предохранительных автоматов, для трехфазных котлов | Сечение кабеля для однофазных котлов | Сечение кабеля для трехфазных котлов |
| 4 кВт | 25 А | 4,0 мм? | ||
| 6 кВт | 32 А | 6,0 мм? | ||
| 10 кВт | 50 А | 10,0 мм? | ||
| 12 кВт | 63 А | 16,0 мм? | 2,5 мм? | |
| 16 кВт | 32 А | 4,0 мм? | ||
| 22 кВт | 40 А | 6,0 мм? | ||
| 27 кВт | 50 А | 10,0 мм? | ||
| 30 кВт | 63 А | 16,0 мм? | ||
| 45 кВт | 80 А | 25 мм? | ||
| 60 кВт | 125 А | 35 мм? |
Какой бы котел не устанавливался для дешевого отопления дома электричеством, в любом случае, необходимо предусмотреть резервный источник тепла.

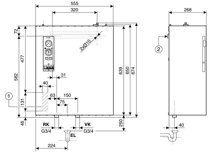
Монтажные размеры электрического котла Buderus Tronic 5000 Н
Как работают электрокотлы, устройство
Общий принцип работы электрических котлов для отопления: теплоноситель (вода) циркулирует с помощью насоса по контуру системы отопления, через котел (внутреннюю камеру, колбу, змеевик) и нагревается там ТЭНами, теплообменниками с электродами, индукционными катушками.
Основные части электрокотла: корпус с нагревателями, циркуляционный насос, блок питания, расширительный бак, система управления и безопасности (манометр, клапан обратный и для стравливания излишнего давления).

Экономичные электрокотлы затребованы в таких условиях:
- если нет возможности использовать газ;
- требуется агрегат более простой в обслуживании, чем приборы на топливе;
- предпочтение отдано более чистому источнику энергии;
- требуется дополнительный нагреватель на случай отключения основного устройства.
Прямая и косвенная системы отопления
Вид отопления, в котором основным источником для нагрева является электроэнергия, считается перспективным. Но прежде чем заменить уже существующее отопление, необходимо разобраться в следующем:
- какой вариант подойдет для вашего жилища;
- какой бюджет вы готовы вложить, чтобы в будущем экономить;
- какой мощности источник электроэнергии уже есть в доме.
От этих факторов будет зависеть выбор системы обогрева.

Большую популярность завоевал способ обогрева дома с помощью электроэнергии
Система прямого отопления
Прямое отопление реализуется путем использования электрообогревателей: конвекторов, теплого пола. электрических масляных радиаторов. Применяя этот вариант, нет необходимости прокладывать трубопроводы, устанавливать котел, покупать радиаторы. Все приборы подключаются самостоятельно к кабельной разводке. Регулируется температура в каждом обогревателе отдельно, что дает возможность контролировать потребление электроэнергии.
Важно! Использование прямого отопления является самым затратным способом обогрева. К преимуществам такой системы можно отнести экономию на капитальные (стоимость оборудования) и эксплуатационные (ремонтные) затраты

Схема системы отопления с прямым контуром радиаторов, смесительным контуром теплого пола и бойлером косвенного нагрева
Система косвенного отопления
Дешевое отопление дома электричеством – это косвенное отопление. Заключается оно в том, что классическое водяное отопление остается неизменным, просто заменяется угольный или газовый котел на электрический. Они бывают со следующими типами нагрева:
- индуктивный – экономичный вариант, здесь нагрев производится благодаря току высокой частоты (волнами радиочастотного диапазона);
- электродный или ионообменный – в этом типе нагрева используются открытые электроды, на которые подается ток (50 Гц);
- прямой – вода нагревается через ТЭН. Этот тип потребляет значительно больше энергии, а также быстрее выходит из строя, однако стоимость такого котла в разы меньше, чем у агрегата с индуктивным или электродным нагревом.

Сравнение эффективности работы котлов: электродного и тенового
К преимуществам электрического котла следует отнести:
- небольшие размеры;
- низкую стоимость;
- быстрый монтаж;
- эксплуатационную и экологическую безопасность;
- бесшумность.
Полезный совет! Хотя цены индукционных котлов для отопления частного дома «кусаются», расход электроэнергии в таких моделях один из самых экономичных. Чтобы действительно ощутить экономию и увидеть ее в счетах за электроэнергию, желательно установить трехфазный котел.

Проект отопления дома с помощью электричества
Преимущества электрокотлов
Некоторые котлы для локальной отопительной системы требуют от владельцев для повышения эффективности работы утепления строения, в котором будет установлена сеть. Но подобные мероприятия не для всех актуальны или по карману, потому большинство владельцев частного дома или дачи, где и хотят создавать закрытую отопительную систему, отдают предпочтение котлам отопления, которые могут хорошо работать и в не утепленных извне постройках. Конечно, утепление повысит сохранность тепла, вырабатываемого любым котлом, но не для всех это требование столь критично, что без него не обойтись.
Плюсы электрического котла:
- легкость монтажа своими руками;
- безопасность устройства;
- длительная работоспособность;
- экономичность;
- нет необходимости в вентиляции и отдельного дымохода;
- простота ухода;
- компактные габариты;
- не шумный;
- экологически чистый, так как работает от электричества и не вырабатывает вредных веществ.
Недостатками могут быть только: повышенная нагрузка на электроэнергию и полная зависимость от бесперебойного электроснабжения. Но прибор все же относится к энергосберегающим и является довольно экономным вариантом, в сравнении с другими видами котлов для отопительной системы дома или дачи, работающих на твердом топливе или газе.
Мнения покупателей
Преимущества
Конечно, нагревательный аппарат не назовешь самым экономичным, но если у вас отсутствует централизованное отопление и нет газификации, это вполне приемлемый и логичный выход.
Также электрический котел хорош тем, что он компактен и не занимает много места, к тому же он экологически чист и работает без шума.
Покупатели отмечают его компактность, не требующую установки дополнительных труб для дымохода. Кроме этого, электрокотлы имеют и другие плюсы.
- Это отсутствие вредных веществ.
- Простота в управлении, и возможность автономной работы.
- Любая неисправность с помощью автоматики сразу же блокирует дальнейшую работу.
- Электрический аппарат для вашего дома самостоятельно регулирует возможность максимальной подачи тепла так, что самовозгорания и замыкания не произойдёт.
Недостатки
Как недостаток пользователи отмечают сравнительно большую стоимость по сравнению с газом, но в то же время по сравнению с привозным углём и домашней печкой, выходит дешевле.
Что дает электродный котел
Сама идея электродного котла состоит в том. чтобы отказаться от применения ТЭНа. Если вы сейчас посмотрите на схему электродного котла, то увидите, что электрический ток проходит через теплоноситель от электрода, на который подается напряжение к корпусу котла, который также является проводником.
Конечно, любой грамотный электрик скажет, что там никакого движения в реальности нет
Но для нас это сейчас совершенно неважно
А важно то, что потери в данном случае минимизированы. И благодаря этому электродный котел имеет КПД до 97 процентов. Куда деваются эти самые 3 процента от 100, я писал вам чуть выше
Куда деваются эти самые 3 процента от 100, я писал вам чуть выше.
Нам же важно, что при прочих равных электродный котел расход электроэнергии будет иметь чуть меньше, чем классический котел с ТЭНами. Это раз. Во-вторых, сам процесс нагревания теплоносителя происходит быстрее, потому что при работе электродного котла прогревается сразу весь объем воды, а не только слой рядом с поверхностью ТЭНа
Во-вторых, сам процесс нагревания теплоносителя происходит быстрее, потому что при работе электродного котла прогревается сразу весь объем воды, а не только слой рядом с поверхностью ТЭНа.
Но в такой схеме есть не только плюсы, но и минусы. О них вы прочитаете ниже, в разделе «Отзывы».
Какой электрокотёл самый экономичный?Нужен для дома 60 кв/м.
Наверное, я чего-то не понимаю. Смысл говорить о КПД есть для газового или твердотопливного котла (там часть тепла в трубу вылетает). а у электрокотла — у любого все, что он потребил, стало теплом. Даже если он с циркуляционным насосом — в конечном счете кинетическая энергия воды преобразуется в тепловую, которая выделится внутри отапливаемого контура. Так что у любого электрокотла КПД=100%. Подбирается только по требуемой для компенсации теплопотерь мощности и типу системы отопления (напорная, самотечная). Для расчета теплопотерь площади мало — нужны теплотехнические характеристики стен, окон, дверей, климатические характеристики района и ориентировка здания. На вскидку могу сказать, что для отопления стандартной дачи постройки 30-х годов площадью ок. 60 кв. м. 20 кВт не хватает (Жуковский котел 23,5 кВт в сильные морозы еле поддерживает систему от разморозки).
satalgat писал про кондей, видимо, он имел ввиду тепловой насос. Штука действительно экономичная, но безумно дорогая, в т. ч. и в эксплуатации. Сделать качественное утепление значительно дешевле.
****** Искусственный Интеллект (135226) 5 лет назад
Обогреваться от электричества самое выгодное — кондиционером.
Комментариев пока нет!
Комбинированный вариант
В обоих случаях, так или иначе, используется внешнее управление работой котла. Естественно, лучший результат по экономии электроэнергии будет достигнут при совместном использовании аккумулирующего бака, работы по низкому ночному тарифу и контроллера управления с недельным и суточным расписанием.
Аккумулирующий бак позволит накапливать тепло ночью и отдавать его в систему отопления днем, а контроллер управления сможет не только задать время ночного включения котла но и самым оптимальным образом определить затраты тепла в течение дня и недели.
Оба варианта примерно равны по стоимости и равнозначны по эффективности, а главное что положительный результат суммируется при совместном использовании. Если у котла, например, указано, что при номинальной мощности можно ожидать затраты электроэнергии на отопление дома в размере 700-950 кВт*ч, то при использовании двух озвученных оптимизаций вполне реально снизить затраты до 450-500 кВт*ч и целиком перевести их на дешевый ночной тариф. Главное, что результат будет достигнут без снижения уровня комфорта для проживающих в доме.
https://youtube.com/watch?v=OwVG-aV8WTM%3F
Достоинства и недостатки ионных котлов отопления
К очевидным преимуществам электродных котлов можно отнести следующие:
- эффективность (нагрев теплоносителя происходит почти мгновенно, КПД приближается к 100%);
- долговечность (не образуется накипь);
- компактность, простота монтажа (габаритные размеры и вес котлов значительно меньше по сравнению с ТЭНовыми);
- возможность автоматического регулирования (правильная настройка цифрового блока позволяет экономить около 40% потребления электроэнергии);
- безопасность эксплуатации при правильно выполненном монтаже (если произойдет разгерметизация отопительной системы или возникнет утечка жидкости, прекратится движение ионов, и котел не станет работать);
- отсутствие шума;
- экологическая безопасность (отсутствуют продукты сгорания, не требуется запасать топливные ресурсы);
- не требуется переоборудовать существующую систему;
- не нужно согласовывать установку котла с органами котлонадзора;
- не высокая цена.
Как любое оборудование, ионные генераторы тепла, наряду с достоинствами, имеют свои минусы:
Лучшие одноконтурные модели
1
Protherm Скат 9 КR 13
33 500 руб. Разработан по системе «всё включено», может использоваться в трёхфазной и однофазной сети. Теплоносителем может служить как антифриз, так и дистиллированная вода. Наличие системы плавного регулирования позволяет избежать проблем при резких перепадах напряжения. Кроме этого, модель оснащена ещё несколькими степенями защиты. Это один из лучших вариантов для небольшого частного дома.
9.8 /10
рейтинг
Достоинства
- Можно подключать тёплый пол
- Понятное управление
- КПД
Недостатки
Нет стабилизатора напряжения
Protherm Скат 9 КR 13
2
ЭВАН Warmos-IV-5
18 000 руб. Хороший, недорогой и экономичный вариант, который можно поставить в частном доме. Недостаточно высокие, на первый взгляд, мощностные показатели компенсируются возможностями нагревателя, ведь аппарат способен не только поддерживать тепло на определённом уровне, но также обладает возможностью подключиться к системе «тёплый пол». Устройство имеет стильный дизайн, который впишется в любой интерьер.
9.7 /10
рейтинг
Достоинства
- Функция антизамерзания
- Защита от перепадов сети
- Можно использовать антифриз
Недостатки
Небольшая мощность
ЭВАН Warmos-IV-5
3
Vaillant eloBLOCK VE 12
33 000 руб. Благодаря простой настройке и управлению такой котёл подойдёт тем домовладельцам, которые не хотят вникать в устройство его работы и подбор оптимального режима, а желают получить агрегат, который сразу будет работать. Мощности Vaillant eloBLOCK VE 12 в 12 кВт хватит на обогрев помещения до 120 кв. метров, но работает он только от трёхфазной сети. Два нагревательных элемента обеспечивают плавный нагрев и экономят электроэнергию. Можно использовать с системой «тёплый пол».
9.5 /10
рейтинг
Достоинства
- Безопасен
- Простое управление
- Полная комплектация
Недостатки
Нет стабилизатора напряжения
Vaillant eloBLOCK VE 12

























































